пошук

Новобудова, Львів, Бойківська - Фото будівництва, Плани

Резиденція Бойківська, Львів: Фото, плани, хід будівництва. Вся інформація про нерухомість на сайті Енциклопедія Новобудов®. житлова новобудова
Інтергал Буд

візуалізації Резиденція Бойківська

 

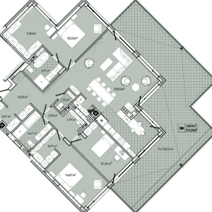
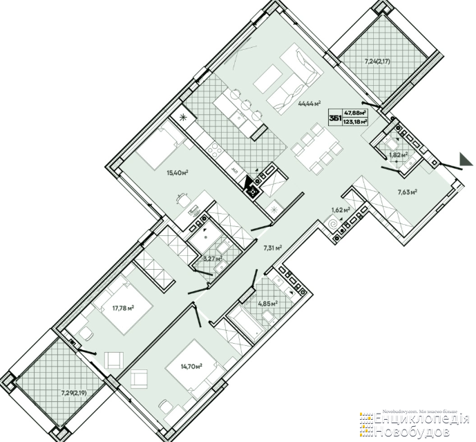
плани Резиденція Бойківська

однокімнатні:
76 м.кв.
двокімнатні:
88 - 102 м.кв.
трикімнатні:
108 - 170 м.кв.
 
 

хід будівництва Резиденція Бойківська

 
готовність (стан):
будується
здача в експлуатацію:
2026
 
телефон:
(098) 788-11-88,
(067) 000-33-61

забудовник (девелопер):
Інтергал Буд
 
залиште свою оцінку:
рейтинг:
(на основі 7 думок)
Rated 4.0/5 based on 7
 
 
консультація

Допомога з пошуку квартир


Заповніть форму і ми передамо Вашу заявку
відділам продажів, де є підходящі варіанти.

заповніть поле

заповніть поле

заповніть поле

заповніть поле

Допомога з пошуку квартир


Заповніть форму і ми передамо Вашу заявку
відділам продажів, де є підходящі варіанти.

заповніть поле

заповніть поле

заповніть поле

заповніть поле

ПОДЗВОНИТИ

Графічна складова Резиденція Бойківська:

  • презентація об'єкта нерухомості, інфраструктури;
  • візуалізація екстер'єру фасаду, інтер'єру приміщень;
  • фотографії хронології зведення каркаса будівлі;
  • фотозйомка різних ракурсів;
  • планувальні рішення, поверхові плани.

Галерея дає можливість наочно побачити:

  • матеріали зведення будинку: стіни, міжповерхове перекриття, дах;
  • вид зовнішнього утеплення, вікна, двері;
  • періодично оновлюваний процес спорудження об'єкта;
  • наявність і тип автомобільного паркінгу;
  • навколишній благоустрій.

Для перегляду збільшених зображень повного розміру натисніть на відповідну картинку.

 

популярне:

 
 
Підписуйтесь та отримайте ПЕРШИМИ всі нові пропозиції від забудовників: