пошук

ЖК Біоритм, Київ - Фото будівництва, Плани

ЖК Біоритм, Київ: Фото, плани, хід будівництва. Вся інформація про нерухомість на сайті Енциклопедія Новобудов®. житлова новобудова
КАН Девелопмент

в наявності:

квартири, комерційні площі

візуалізації ЖК Біоритм

 

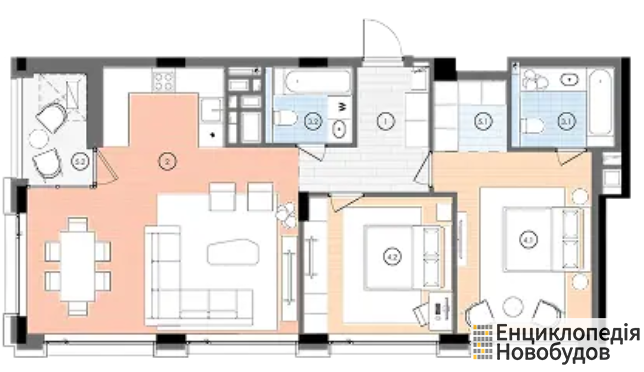
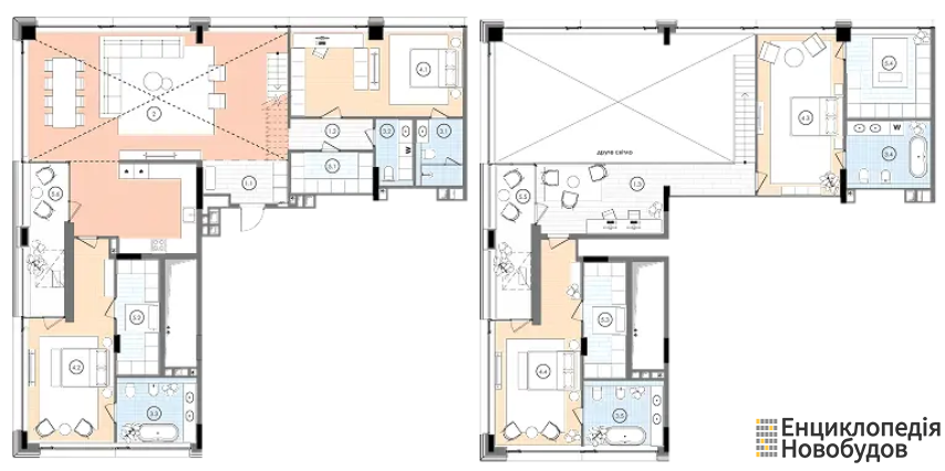
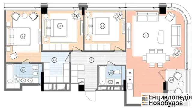
плани ЖК Біоритм

однокімнатні:
43 - 60 м.кв.
двокімнатні:
70 - 127 м.кв.
трикімнатні:
117 - 180 м.кв.
4+ кімнатні:
203 - 300 м.кв.
 
 

хід будівництва ЖК Біоритм

 
готовність (стан):
будується
здача в експлуатацію:
2028, 3 квартал
 
телефон:
(044) 344 44 44
забудовник (девелопер):
КАН Девелопмент
 
залиште свою оцінку:
рейтинг:
(на основі 4 думок)
Rated 5.0/5 based on 4
 
 
ПОДЗВОНИТИ

Графічна складова ЖК Біоритм:

  • презентація об'єкта нерухомості, інфраструктури;
  • візуалізація екстер'єру фасаду, інтер'єру приміщень;
  • фотографії хронології зведення каркаса будівлі;
  • фотозйомка різних ракурсів;
  • планувальні рішення, поверхові плани.

Галерея дає можливість наочно побачити:

  • матеріали зведення будинку: стіни, міжповерхове перекриття, дах;
  • вид зовнішнього утеплення, вікна, двері;
  • періодично оновлюваний процес спорудження об'єкта;
  • наявність і тип автомобільного паркінгу;
  • навколишній благоустрій.

Для перегляду збільшених зображень повного розміру натисніть на відповідну картинку.

 

популярне:

 
 
Підписуйтесь та отримайте ПЕРШИМИ всі нові пропозиції від забудовників: