пошук

ParkWill, Крюківщина - Фото будівництва, Плани

Котеджне містечко ParkWill, Крюківщина: Фото, плани, хід будівництва. Вся інформація про нерухомість на сайті Енциклопедія Новобудов®. дуплекс
Доброград

візуалізації ParkWill

 

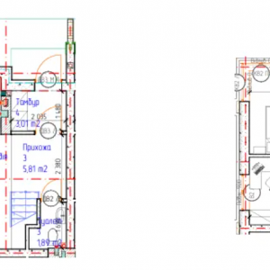
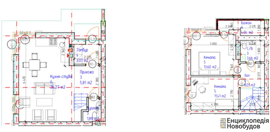
плани ParkWill

загальна площа:
78, 113 м.кв.
 
 
готовність (стан):
будується
 
телефон:
(067) 275 41 34
забудовник (девелопер):
Доброград
 
залиште свою оцінку:
рейтинг:
(на основі 4 думок)
Rated 4.3/5 based on 4
 
 
ПОДЗВОНИТИ

Графічна складова ParkWill:

  • презентація об'єкта нерухомості, інфраструктури;
  • візуалізація екстер'єру фасаду, інтер'єру приміщень;
  • фотографії хронології зведення каркаса будівлі;
  • фотозйомка різних ракурсів;
  • планувальні рішення, поверхові плани.

Галерея дає можливість наочно побачити:

  • матеріали зведення будинку: стіни, міжповерхове перекриття, дах;
  • вид зовнішнього утеплення, вікна, двері;
  • періодично оновлюваний процес спорудження об'єкта;
  • наявність і тип автомобільного паркінгу;
  • навколишній благоустрій.

Для перегляду збільшених зображень повного розміру натисніть на відповідну картинку.

 

популярне:

 
 
Підписуйтесь та отримайте ПЕРШИМИ всі нові пропозиції від забудовників: