пошук

Котеджне містечко SMADE Park, Іванковичі - Фото будівництва, Плани

Котеджне містечко SMADE Park, Іванковичі: Фото, плани, хід будівництва. Вся інформація про нерухомість на сайті Енциклопедія Новобудов®. котедж

візуалізації SMADE Park

 

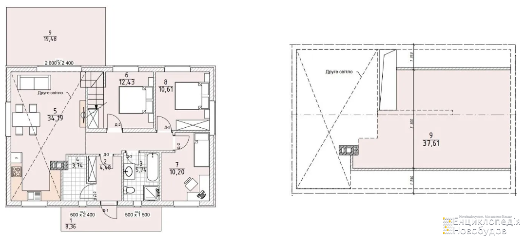
плани SMADE Park

загальна площа:
119, 163 м.кв.
 
 
готовність (стан):
завершено
 
телефон:
(097) 951-93-37
 
залиште свою оцінку:
рейтинг:
(на основі 1 думок)
Rated 4.0/5 based on 1
 
 
ПОДЗВОНИТИ

Графічна складова SMADE Park:

  • презентація об'єкта нерухомості, інфраструктури;
  • візуалізація екстер'єру фасаду, інтер'єру приміщень;
  • фотографії хронології зведення каркаса будівлі;
  • фотозйомка різних ракурсів;
  • планувальні рішення, поверхові плани.

Галерея дає можливість наочно побачити:

  • матеріали зведення будинку: стіни, міжповерхове перекриття, дах;
  • вид зовнішнього утеплення, вікна, двері;
  • періодично оновлюваний процес спорудження об'єкта;
  • наявність і тип автомобільного паркінгу;
  • навколишній благоустрій.

Для перегляду збільшених зображень повного розміру натисніть на відповідну картинку.

 

популярне:

 
 
Підписуйтесь та отримайте ПЕРШИМИ всі нові пропозиції від забудовників: