пошук

ЖК Гармонія, Липини - Фото будівництва, Плани

ЖК Гармонія, Липини: Фото, плани, хід будівництва. Вся інформація про нерухомість на сайті Енциклопедія Новобудов®. житлова новобудова
Ефект

візуалізації ЖК Гармонія

 

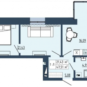
плани ЖК Гармонія

однокімнатні:
37 - 50 м.кв.
двокімнатні:
63 - 65 м.кв.
 
 

хід будівництва ЖК Гармонія

 
готовність (стан):
будується
здача в експлуатацію:
2027, 2 квартал
 
телефон:
(0332) 28-24-81
забудовник (девелопер):
Ефект
 
залиште свою оцінку:
рейтинг:
(на основі 11 думок)
Rated 3.5/5 based on 11
 
 
ПОДЗВОНИТИ

Графічна складова ЖК Гармонія:

  • презентація об'єкта нерухомості, інфраструктури;
  • візуалізація екстер'єру фасаду, інтер'єру приміщень;
  • фотографії хронології зведення каркаса будівлі;
  • фотозйомка різних ракурсів;
  • планувальні рішення, поверхові плани.

Галерея дає можливість наочно побачити:

  • матеріали зведення будинку: стіни, міжповерхове перекриття, дах;
  • вид зовнішнього утеплення, вікна, двері;
  • періодично оновлюваний процес спорудження об'єкта;
  • наявність і тип автомобільного паркінгу;
  • навколишній благоустрій.

Для перегляду збільшених зображень повного розміру натисніть на відповідну картинку.

 

популярне:

 
 
Підписуйтесь та отримайте ПЕРШИМИ всі нові пропозиції від забудовників: