пошук

ЖК PRAUD Rise, Львів - Фото будівництва, Плани

ЖК PRAUD Rise, Львів: Фото, плани, хід будівництва. Вся інформація про нерухомість на сайті Енциклопедія Новобудов®. житлова новобудова
PRAUD

візуалізації ЖК PRAUD Rise

 

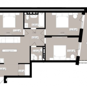
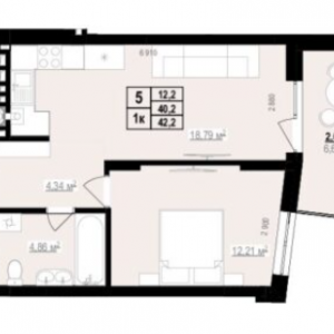
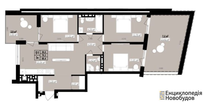
плани ЖК PRAUD Rise

однокімнатні:
40 - 47 м.кв.
двокімнатні:
57 - 78 м.кв.
трикімнатні:
78 - 118 м.кв.
 
 

хід будівництва ЖК PRAUD Rise

 
готовність (стан):
підготовка до будівництва
здача в експлуатацію:
2028, 3 квартал
 
телефон:
(068) 60-90-590,
(050) 60-90-590

забудовник (девелопер):
PRAUD
 
залиште свою оцінку:
рейтинг:
(на основі 1 думок)
Rated 4.0/5 based on 1
 
 
консультація

Допомога з пошуку квартир


Заповніть форму і ми передамо Вашу заявку
відділам продажів, де є підходящі варіанти.

заповніть поле

заповніть поле

заповніть поле

заповніть поле

Допомога з пошуку квартир


Заповніть форму і ми передамо Вашу заявку
відділам продажів, де є підходящі варіанти.

заповніть поле

заповніть поле

заповніть поле

заповніть поле

Допомога з пошуку квартир


Заповніть форму і ми передамо Вашу заявку
відділам продажів, де є підходящі варіанти.

заповніть поле

заповніть поле

заповніть поле

заповніть поле

Допомога з пошуку квартир


Заповніть форму і ми передамо Вашу заявку
відділам продажів, де є підходящі варіанти.

заповніть поле

заповніть поле

заповніть поле

заповніть поле

ПОДЗВОНИТИ

Графічна складова ЖК PRAUD Rise:

  • презентація об'єкта нерухомості, інфраструктури;
  • візуалізація екстер'єру фасаду, інтер'єру приміщень;
  • фотографії хронології зведення каркаса будівлі;
  • фотозйомка різних ракурсів;
  • планувальні рішення, поверхові плани.

Галерея дає можливість наочно побачити:

  • матеріали зведення будинку: стіни, міжповерхове перекриття, дах;
  • вид зовнішнього утеплення, вікна, двері;
  • періодично оновлюваний процес спорудження об'єкта;
  • наявність і тип автомобільного паркінгу;
  • навколишній благоустрій.

Для перегляду збільшених зображень повного розміру натисніть на відповідну картинку.

 

популярне:

 
 
Підписуйтесь та отримайте ПЕРШИМИ всі нові пропозиції від забудовників: