пошук

Новобудова, Січинського, Львів - Фото будівництва, Плани

Новобудова, Львів, Січинського: Фото, плани, хід будівництва. Вся інформація про нерухомість на сайті Енциклопедія Новобудов®. житлова новобудова
Карпатбуд

візуалізації

 

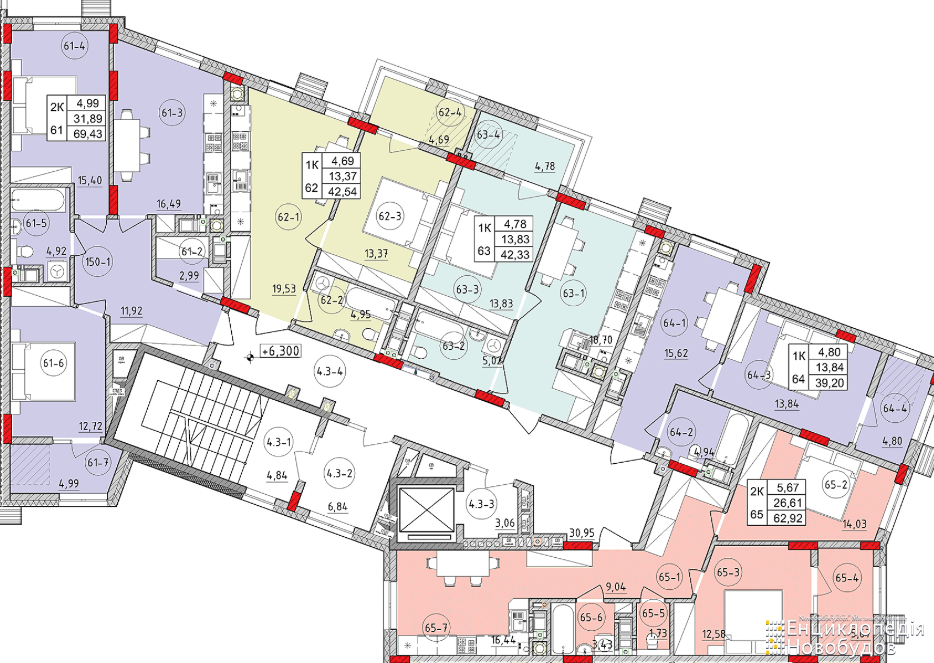
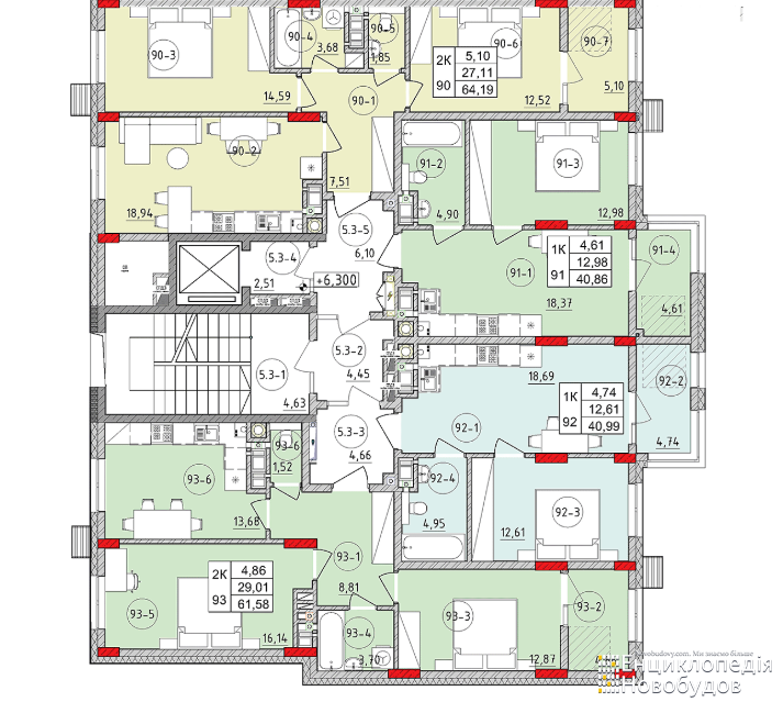
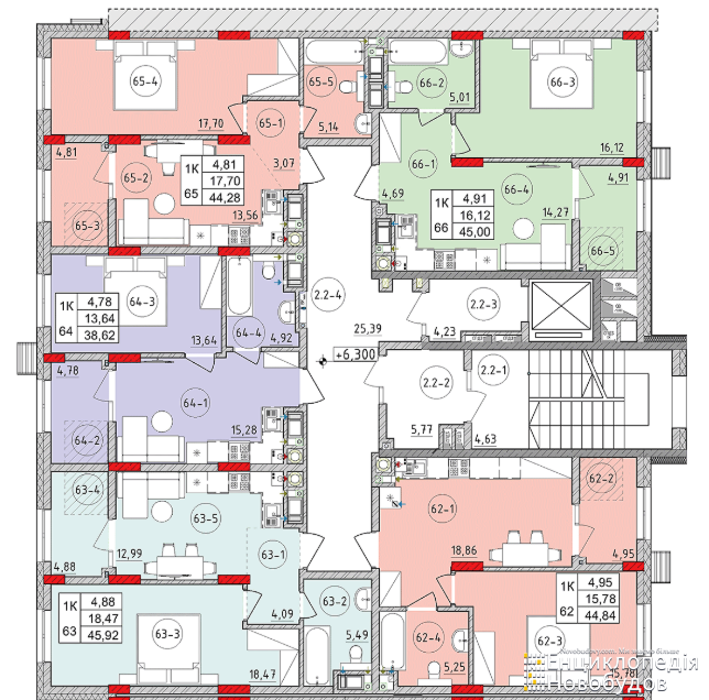
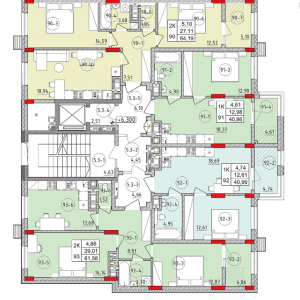
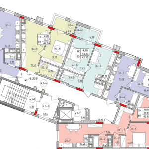
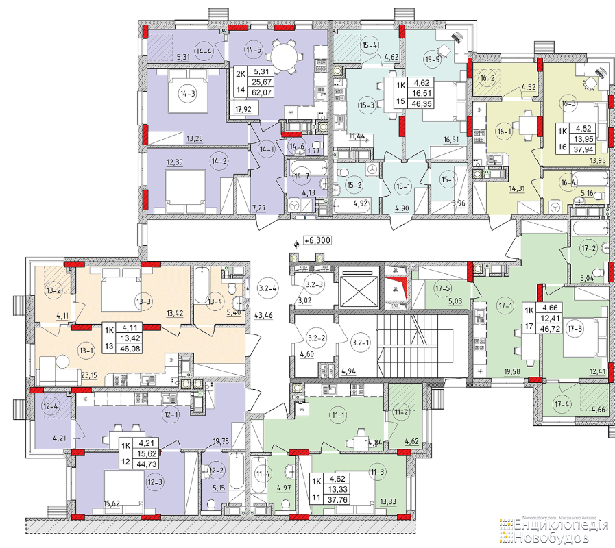
плани

однокімнатні:
32 - 90 м.кв.
двокімнатні:
55 - 104 м.кв.
трикімнатні:
84 м.кв.
 
 

хід будівництва

 
готовність (стан):
будується
здача в експлуатацію:
2027, 3 квартал
 
телефон:
(096) 1-400-400
забудовник (девелопер):
Карпатбуд
 
залиште свою оцінку:
рейтинг:
(на основі 3 думок)
Rated 2.7/5 based on 3
 
 
консультація

Допомога з пошуку квартир


Заповніть форму і ми передамо Вашу заявку
відділам продажів, де є підходящі варіанти.

заповніть поле

заповніть поле

заповніть поле

заповніть поле

Допомога з пошуку квартир


Заповніть форму і ми передамо Вашу заявку
відділам продажів, де є підходящі варіанти.

заповніть поле

заповніть поле

заповніть поле

заповніть поле

Допомога з пошуку квартир


Заповніть форму і ми передамо Вашу заявку
відділам продажів, де є підходящі варіанти.

заповніть поле

заповніть поле

заповніть поле

заповніть поле

Допомога з пошуку квартир


Заповніть форму і ми передамо Вашу заявку
відділам продажів, де є підходящі варіанти.

заповніть поле

заповніть поле

заповніть поле

заповніть поле

ПОДЗВОНИТИ

Графічна складова:

  • презентація об'єкта нерухомості, інфраструктури;
  • візуалізація екстер'єру фасаду, інтер'єру приміщень;
  • фотографії хронології зведення каркаса будівлі;
  • фотозйомка різних ракурсів;
  • планувальні рішення, поверхові плани.

Галерея дає можливість наочно побачити:

  • матеріали зведення будинку: стіни, міжповерхове перекриття, дах;
  • вид зовнішнього утеплення, вікна, двері;
  • періодично оновлюваний процес спорудження об'єкта;
  • наявність і тип автомобільного паркінгу;
  • навколишній благоустрій.

Для перегляду збільшених зображень повного розміру натисніть на відповідну картинку.

 

популярне:

 
 
Підписуйтесь та отримайте ПЕРШИМИ всі нові пропозиції від забудовників: