пошук

ЖК Garden City, Ужгород - Фото будівництва, Плани

ЖК Garden City, Ужгород: Фото, плани, хід будівництва. Вся інформація про нерухомість на сайті Енциклопедія Новобудов®. житлова новобудова

в наявності:

квартири, комерційні площі

візуалізації ЖК Garden City

 

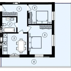
плани ЖК Garden City

однокімнатні:
38 - 58 м.кв.
двокімнатні:
55 - 80 м.кв.
 
 

хід будівництва ЖК Garden City

 
готовність (стан):
підготовка до будівництва
здача в експлуатацію:
2027, 4 квартал
 
телефон:
(099) 503 50 50
 
залиште свою оцінку:
рейтинг:
(на основі 3 думок)
Rated 4.7/5 based on 3
 
 
ПОДЗВОНИТИ

Графічна складова ЖК Garden City:

  • презентація об'єкта нерухомості, інфраструктури;
  • візуалізація екстер'єру фасаду, інтер'єру приміщень;
  • фотографії хронології зведення каркаса будівлі;
  • фотозйомка різних ракурсів;
  • планувальні рішення, поверхові плани.

Галерея дає можливість наочно побачити:

  • матеріали зведення будинку: стіни, міжповерхове перекриття, дах;
  • вид зовнішнього утеплення, вікна, двері;
  • періодично оновлюваний процес спорудження об'єкта;
  • наявність і тип автомобільного паркінгу;
  • навколишній благоустрій.

Для перегляду збільшених зображень повного розміру натисніть на відповідну картинку.

 

популярне:

 
 
Підписуйтесь та отримайте ПЕРШИМИ всі нові пропозиції від забудовників: