новобудови
котеджі
компанії
карта
пошук
На русском
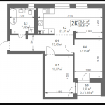
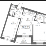
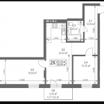
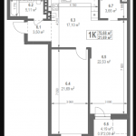
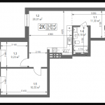
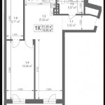
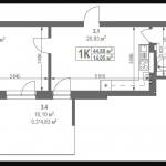
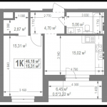
ЖК, Львів, Лисеницька - фото будівництва та планування
візуалізації
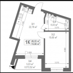
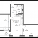
плани
хід будівництва
переглянути всю інформацію
телефон:
(077) 000 16 77
популярне:
39 690 грн/м
2
ЖК Auroom Solar, Львів
41 013 грн/м
2
ЖК Avalon Holiday, Сокільники
64 386 грн/м
2
ЖК Viking Gardens, Львів
Підписуйтесь та отримайте ПЕРШИМИ всі нові пропозиції від забудовників:
Email
Telegram
Останні новини
19/12
Будівельна премія-2025: підсумки відбору
23/01
Львів. Введено в експлуатацію ІІІ чергу «Еко-Дім на Тракті 4»
17/12
Введено в експлуатацію будинок№3 в Еко-Дім на Надійній
<path id="path10669" d="m6.61406 286.94607h2.646485c.3528648 0 .3528648-.5293 0-.5293h-2.65918c-.36556.0169-.34017.54622.0127.5293z" fill="#e1e5e6 data-original=" #c8d4d9"="">
Подивитись всі
вся нерухомість
продаж квартир
магазини (ТЦ)
офіси (БЦ)