поиск

ЖК, Львов, Лисенецкая - Фото строительства, Планы

ЖК, Львов, Лисенецкая: Фото, планы, ход строительства. Вся информация о недвижимости на сайте Енциклопедія Новобудов®. жилая новостройка
Mono Estate Development

визуализации

 

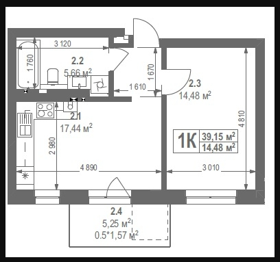
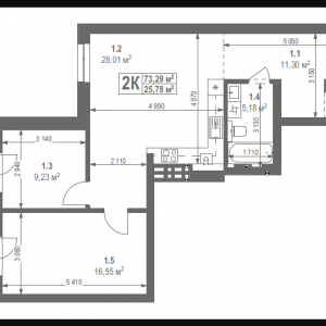
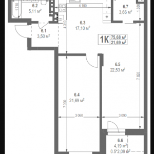
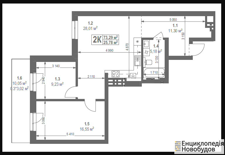
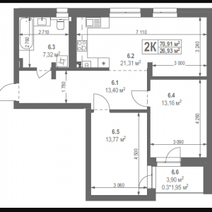
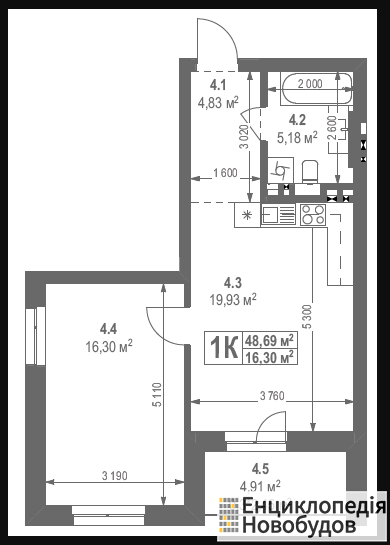
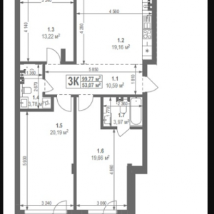
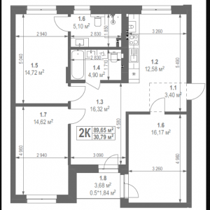
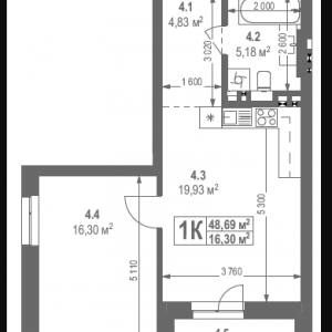
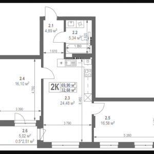
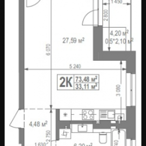
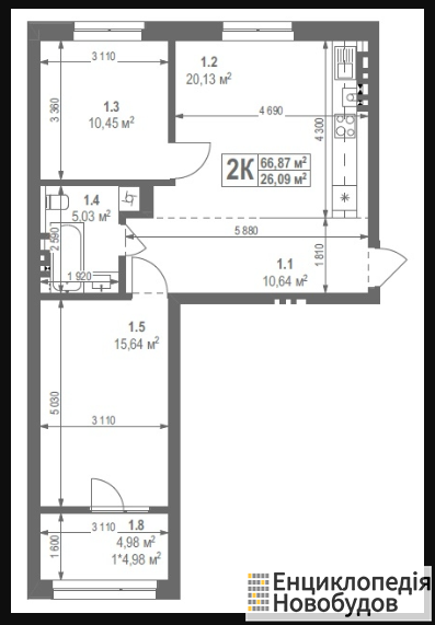
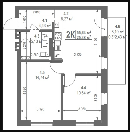
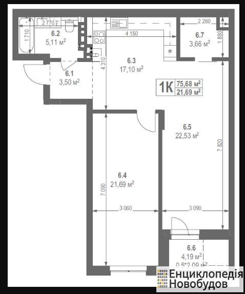
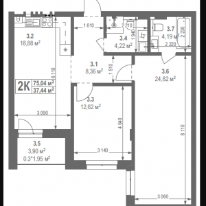
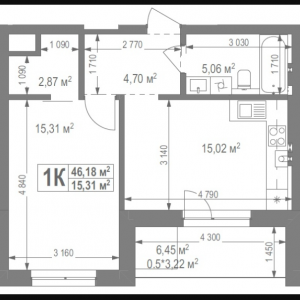
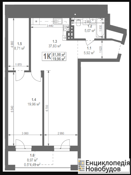
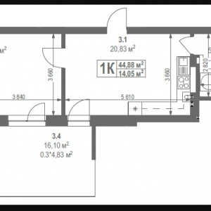
планы

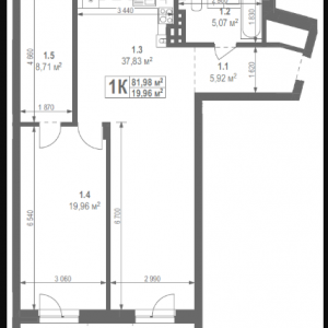
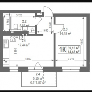
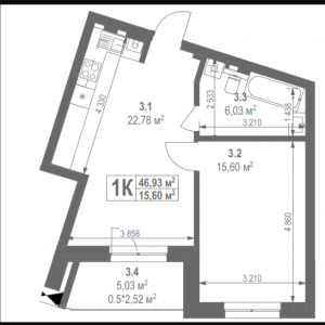
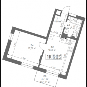
однокомнатные:
38 - 85 м.кв.
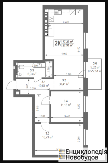
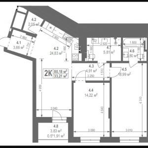
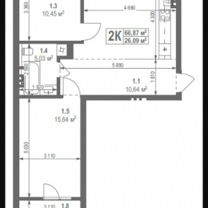
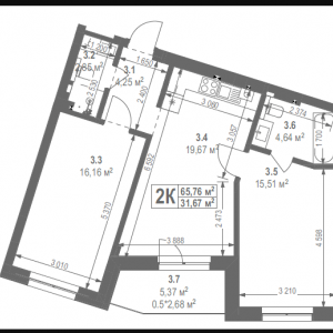
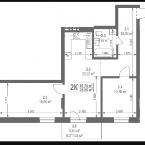
двухкомнатные:
55 - 90 м.кв.
трехкомнатные:
83 - 108 м.кв.
 
 

ход строительства

 
готовность (состояние):
подготовка к строительству
сдача в эксплуатацию:
2027, 2 квартал
 
телефон:
(077) 000 16 77
застройщик (девелопер):
Mono Estate Development
 
оставьте свою оценку:
рейтинг:
(на основе 10 мнений)
Rated 4.2/5 based on 10
 
 
ПОЗВОНИТЬ

Графическая составляющая:

  • презентация недвижимости, инфраструктуры;
  • визуализация экстерьера фасада, дизайн интерьера помещений;
  • фотографии хронологии роста каркаса здания;
  • фотосъемка разных ракурсов;
  • планировочные решения, поэтажные планы.

Галерея дает возможность наглядно увидеть:

  • материалы возведения дома: стены, межэтажное перекрытие, крыша;
  • вид внешнего утепления, окна, двери;
  • периодически обновляемый процесс сооружения объекта;
  • наличие и тип автомобильного паркинга;
  • окружающее благоустройство.

Для просмотра увеличенных изображений полного размера нажмите на соответствующую картинку.

 

популярное:

 
 
Подписывайтесь и получайте ПЕРВЫМИ все новые пропозиции от застройщиков: