поиск

ЖК Atmosfera Premium, Софиевская Борщаговка - Фото строительства, Планы

ЖК Atmosfera Premium, Софиевская Борщаговка: Фото, планы, ход строительства. Вся информация о недвижимости на сайте Енциклопедія Новобудов®. жилая новостройка
Инвестиционная группа Молодость

визуализации ЖК Atmosfera Premium

 

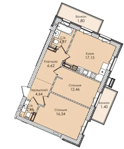
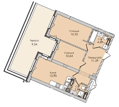
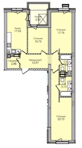
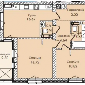
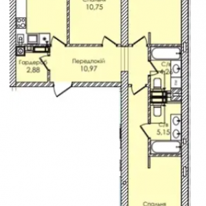
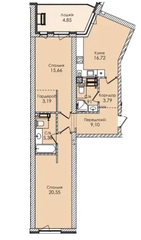
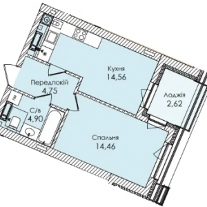
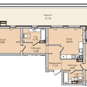
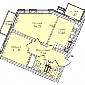
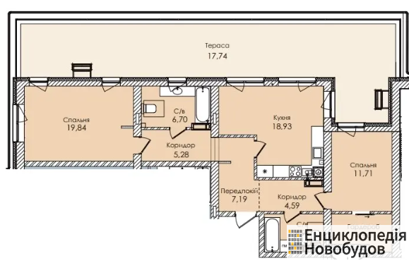
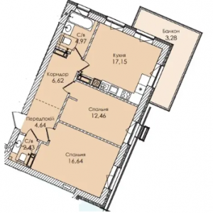
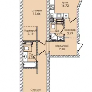
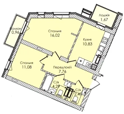
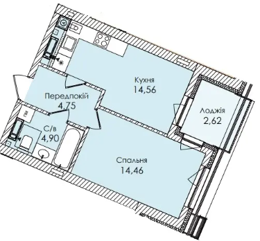
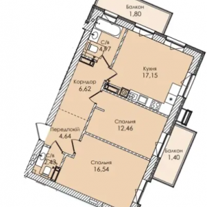
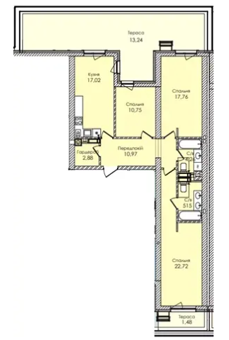
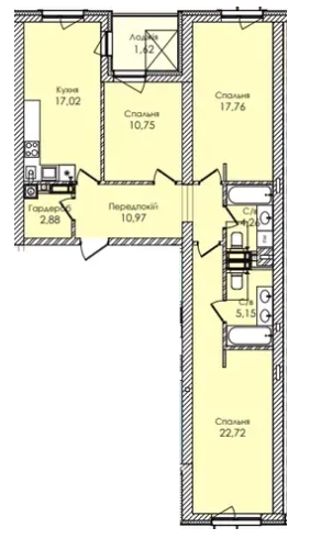
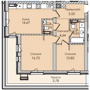
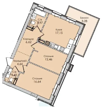
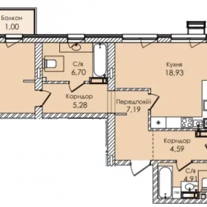
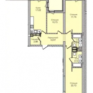
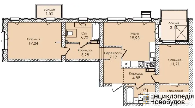
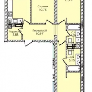
планы ЖК Atmosfera Premium

однокомнатные:
28 - 52 м.кв.
двухкомнатные:
55 - 100 м.кв.
трехкомнатные:
95 - 105 м.кв.
 
 

ход строительства ЖК Atmosfera Premium

 
готовность (состояние):
строится
сдача в эксплуатацию:
2027, 4 квартал
 
телефон:
(098) 487-20-20,
(095) 487-20-20

застройщик (девелопер):
Инвестиционная группа Молодость
 
оставьте свою оценку:
рейтинг:
(на основе 4 мнений)
Rated 3.8/5 based on 4
 
 
ПОЗВОНИТЬ

Графическая составляющая ЖК Atmosfera Premium:

  • презентация недвижимости, инфраструктуры;
  • визуализация экстерьера фасада, дизайн интерьера помещений;
  • фотографии хронологии роста каркаса здания;
  • фотосъемка разных ракурсов;
  • планировочные решения, поэтажные планы.

Галерея дает возможность наглядно увидеть:

  • материалы возведения дома: стены, межэтажное перекрытие, крыша;
  • вид внешнего утепления, окна, двери;
  • периодически обновляемый процесс сооружения объекта;
  • наличие и тип автомобильного паркинга;
  • окружающее благоустройство.

Для просмотра увеличенных изображений полного размера нажмите на соответствующую картинку.

 

популярное:

 
 
Подписывайтесь и получайте ПЕРВЫМИ все новые пропозиции от застройщиков: