поиск

ЖК Estet Hill, Крюковщина - Фото строительства, Планы

ЖК Estet Hill, Крюковщина: Фото, планы, ход строительства. Вся информация о недвижимости на сайте Енциклопедія Новобудов®. жилая новостройка
Credo Development

в наличии:

квартиры, коммерческие площади

визуализации ЖК Estet Hill

 

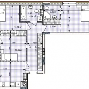
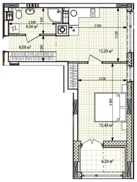
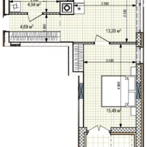
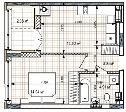
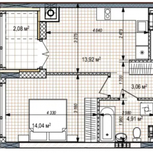
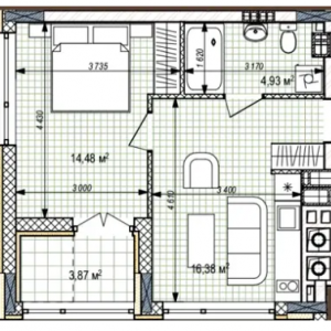
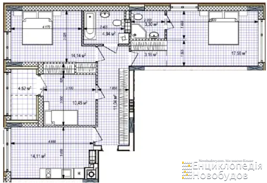
планы ЖК Estet Hill

однокомнатные:
35 - 50 м.кв.
двухкомнатные:
59 - 72 м.кв.
трехкомнатные:
83 м.кв.
 
 

ход строительства ЖК Estet Hill

 
готовность (состояние):
строится
сдача в эксплуатацию:
2026, 4 квартал
2027, 3 квартал
 
телефон:
(077) 404 45 45
застройщик (девелопер):
Credo Development
 
оставьте свою оценку:
рейтинг:
(на основе 1 мнений)
Rated 5.0/5 based on 1
 
 
ПОЗВОНИТЬ

Графическая составляющая ЖК Estet Hill:

  • презентация недвижимости, инфраструктуры;
  • визуализация экстерьера фасада, дизайн интерьера помещений;
  • фотографии хронологии роста каркаса здания;
  • фотосъемка разных ракурсов;
  • планировочные решения, поэтажные планы.

Галерея дает возможность наглядно увидеть:

  • материалы возведения дома: стены, межэтажное перекрытие, крыша;
  • вид внешнего утепления, окна, двери;
  • периодически обновляемый процесс сооружения объекта;
  • наличие и тип автомобильного паркинга;
  • окружающее благоустройство.

Для просмотра увеличенных изображений полного размера нажмите на соответствующую картинку.

 

популярное:

 
 
Подписывайтесь и получайте ПЕРВЫМИ все новые пропозиции от застройщиков: