поиск

Таунхаус Миланж, Мила - Фото строительства, Планы

Таунхаус Миланж, Мила: Фото, планы, ход строительства. Вся информация о недвижимости на сайте Енциклопедія Новобудов®. таунхаус дуплекс
TRB Development

визуализации Миланж

 

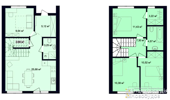
планы Миланж

общая площадь:
87, 98, 122 м.кв.
 
 
готовность (состояние):
строится
 
телефон:
(067) 905 50 05
застройщик (девелопер):
TRB Development
 
оставьте свою оценку:
рейтинг:
(на основе 1 мнений)
Rated 4.0/5 based on 1
 
 
ПОЗВОНИТЬ

Графическая составляющая Миланж:

  • презентация недвижимости, инфраструктуры;
  • визуализация экстерьера фасада, дизайн интерьера помещений;
  • фотографии хронологии роста каркаса здания;
  • фотосъемка разных ракурсов;
  • планировочные решения, поэтажные планы.

Галерея дает возможность наглядно увидеть:

  • материалы возведения дома: стены, межэтажное перекрытие, крыша;
  • вид внешнего утепления, окна, двери;
  • периодически обновляемый процесс сооружения объекта;
  • наличие и тип автомобильного паркинга;
  • окружающее благоустройство.

Для просмотра увеличенных изображений полного размера нажмите на соответствующую картинку.

 

популярное:

 
 
Подписывайтесь и получайте ПЕРВЫМИ все новые пропозиции от застройщиков: