поиск

Коттеджный городок Beverly Hills, Винница - Фото строительства, Планы

Котеджный городок Beverly Hills, Винница: Фото, планы, ход строительства. Вся информация о недвижимости на сайте Енциклопедія Новобудов®. коттедж таунхаус дуплекс

визуализации Beverly Hills

 

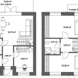
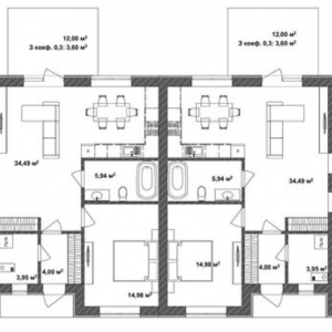
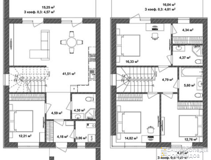
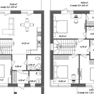
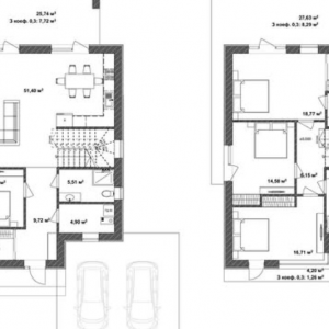
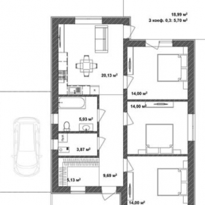
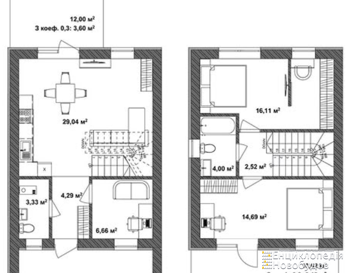
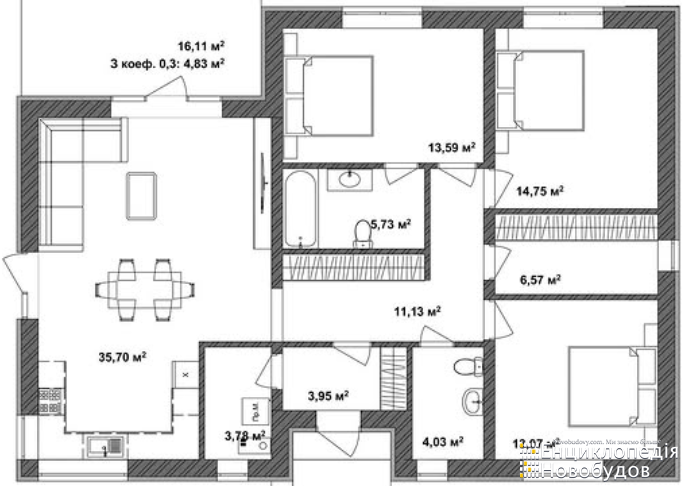
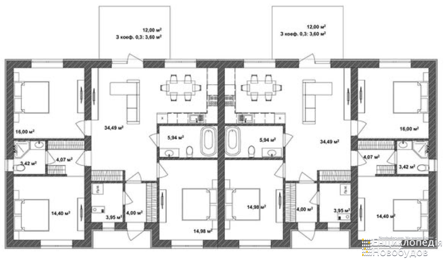
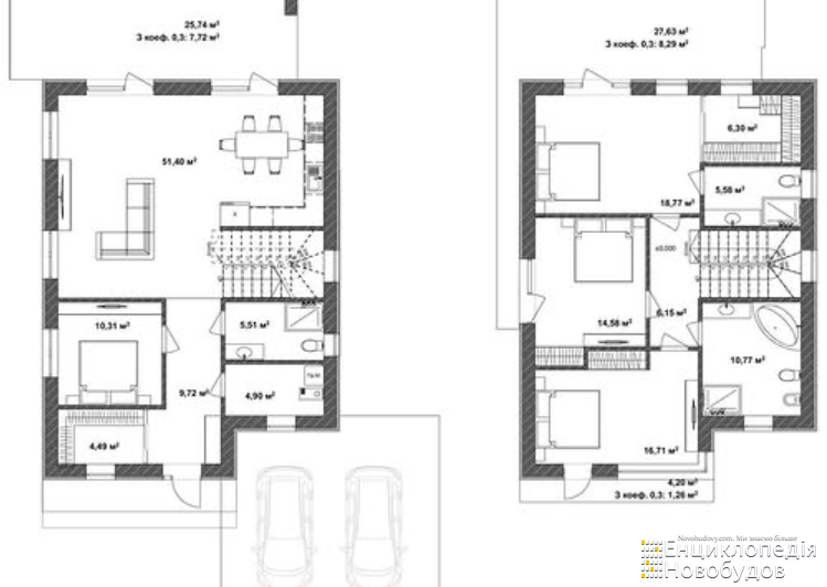
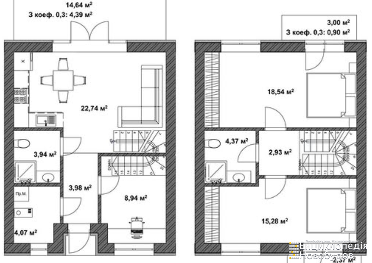
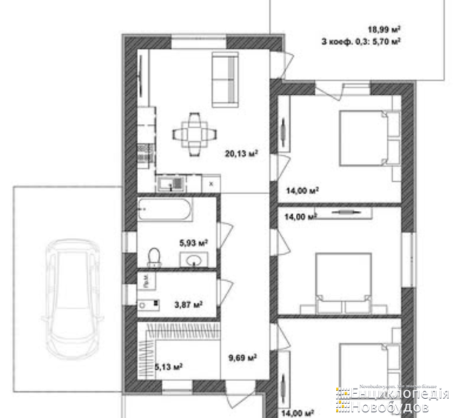
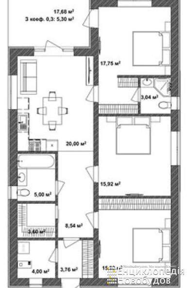
планы Beverly Hills

общая площадь:
81, 88, 92, 103, 105, 108, 117, 125, 128, 145, 150, 153, 168, 183 м.кв.
 
 
готовность (состояние):
проект
 
телефон:
(068) 398 98 88
 
оставьте свою оценку:
рейтинг:
(на основе 42 мнений)
Rated 3.0/5 based on 42
 
 
ПОЗВОНИТЬ

Графическая составляющая Beverly Hills:

  • презентация недвижимости, инфраструктуры;
  • визуализация экстерьера фасада, дизайн интерьера помещений;
  • фотографии хронологии роста каркаса здания;
  • фотосъемка разных ракурсов;
  • планировочные решения, поэтажные планы.

Галерея дает возможность наглядно увидеть:

  • материалы возведения дома: стены, межэтажное перекрытие, крыша;
  • вид внешнего утепления, окна, двери;
  • периодически обновляемый процесс сооружения объекта;
  • наличие и тип автомобильного паркинга;
  • окружающее благоустройство.

Для просмотра увеличенных изображений полного размера нажмите на соответствующую картинку.

 

популярное:

 
 
Подписывайтесь и получайте ПЕРВЫМИ все новые пропозиции от застройщиков: