поиск

ЖК ТИSHA, Винница - Фото строительства, Планы

ЖК ТИSHA, Винница: Фото, планы, ход строительства. Вся информация о недвижимости на сайте Енциклопедія Новобудов®. жилая новостройка

визуализации ЖК ТИSHA

 

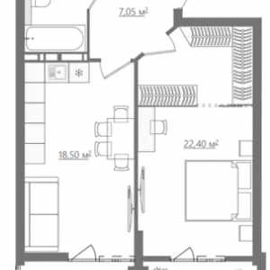
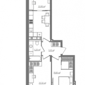
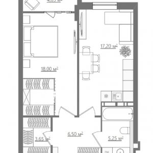
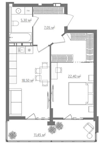
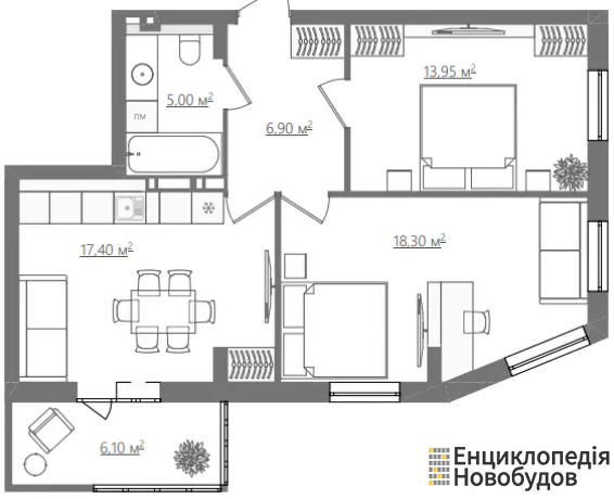
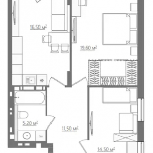
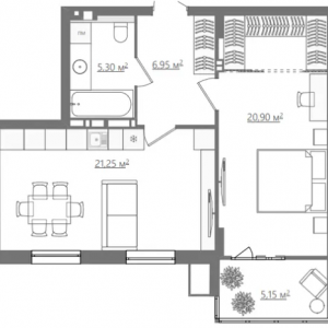
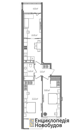
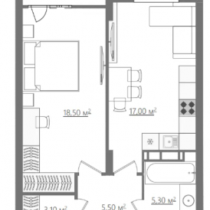
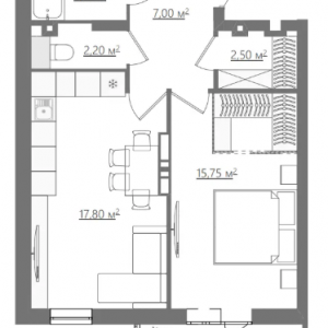
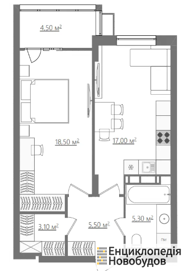
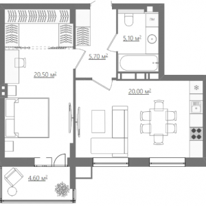
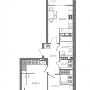
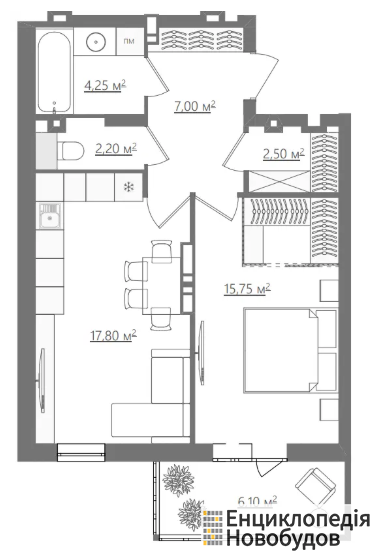
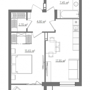
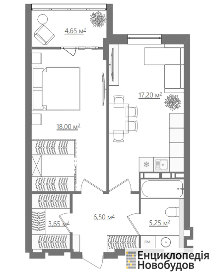
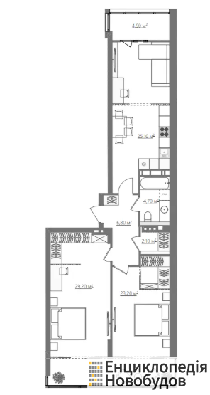
планы ЖК ТИSHA

однокомнатные:
52 - 65 м.кв.
двухкомнатные:
68 - 95 м.кв.
 
 
готовность (состояние):
строится
сдача в эксплуатацию:
2027, 4 квартал
 
телефон:
(077) 004-80-00
 
оставьте свою оценку:
рейтинг:
(на основе 1 мнений)
Rated 4.0/5 based on 1
 
 
ПОЗВОНИТЬ

Графическая составляющая ЖК ТИSHA:

  • презентация недвижимости, инфраструктуры;
  • визуализация экстерьера фасада, дизайн интерьера помещений;
  • фотографии хронологии роста каркаса здания;
  • фотосъемка разных ракурсов;
  • планировочные решения, поэтажные планы.

Галерея дает возможность наглядно увидеть:

  • материалы возведения дома: стены, межэтажное перекрытие, крыша;
  • вид внешнего утепления, окна, двери;
  • периодически обновляемый процесс сооружения объекта;
  • наличие и тип автомобильного паркинга;
  • окружающее благоустройство.

Для просмотра увеличенных изображений полного размера нажмите на соответствующую картинку.

 

популярное:

 
 
Подписывайтесь и получайте ПЕРВЫМИ все новые пропозиции от застройщиков: