поиск

ЖК Manhattan, Житомир - Фото строительства, Планы

ЖК Manhattan, Житомир: Фото, планы, ход строительства. Вся информация о недвижимости на сайте Енциклопедія Новобудов®. жилая новостройка
АртХаус Груп

в наличии:

квартиры, коммерческие площади

визуализации ЖК Manhattan

 

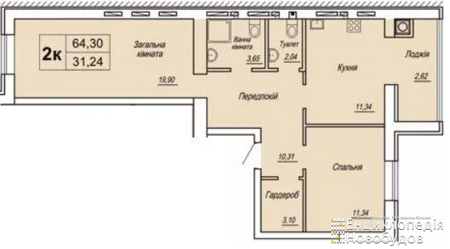
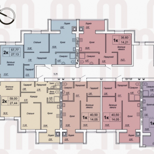
планы ЖК Manhattan

однокомнатные:
32 - 40 м.кв.
двухкомнатные:
58 - 70 м.кв.
трехкомнатные:
78 м.кв.
 
 

ход строительства ЖК Manhattan

 
готовность (состояние):
строится
сдача в эксплуатацию:
2027, 2 квартал
 
телефон:
(068) 955 45 45
застройщик (девелопер):
АртХаус Груп
 
оставьте свою оценку:
рейтинг:
(на основе 17 мнений)
Rated 2.8/5 based on 17
 
 
ПОЗВОНИТЬ

Графическая составляющая ЖК Manhattan:

  • презентация недвижимости, инфраструктуры;
  • визуализация экстерьера фасада, дизайн интерьера помещений;
  • фотографии хронологии роста каркаса здания;
  • фотосъемка разных ракурсов;
  • планировочные решения, поэтажные планы.

Галерея дает возможность наглядно увидеть:

  • материалы возведения дома: стены, межэтажное перекрытие, крыша;
  • вид внешнего утепления, окна, двери;
  • периодически обновляемый процесс сооружения объекта;
  • наличие и тип автомобильного паркинга;
  • окружающее благоустройство.

Для просмотра увеличенных изображений полного размера нажмите на соответствующую картинку.

 

популярное:

 
 
Подписывайтесь и получайте ПЕРВЫМИ все новые пропозиции от застройщиков: