новостройки
коттеджи
компании
карта
поиск
Українською
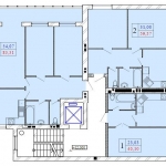
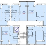
ЖК Grand Royal, Хмельницкий - фото строительства и планировки
визуализации
планы
ход строительства
просмотреть всю информацию
телефон:
(097) 040-01-01
популярное:
27 500 грн/м
2
ЖК Ранкове Family, Хмельницкий
31 000 грн/м
2
ЖК Молодежный, Хмельницкий
ЖК Парк Таун, Хмельницкий
Подписывайтесь и получайте ПЕРВЫМИ все новые пропозиции от застройщиков:
Email
Telegram
вся недвижимость
продажа квартир
магазины (ТЦ)
офисы (БЦ)